auftragsspektrum
leistungsbild
referenzen
porträt
kontakt
download
anfahrt
impressum
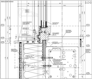
Bremer Landesbank, Bremen Leitdetail V-Schnitt polygonale Innenhoffassade, Brüstungsanschluss
Bremer Landesbank,
Bremen
Leitdetail
V-Schnitt polygonale Innenhoffassade, Brüstungsanschluss
zurück weiter
zurück
startseite